| 所在地 | 札幌市中央区北2条西3丁目 |
|---|---|
| 賃 料 | 5,296,368円 |
| 共益費 | - |
| 坪単価 | 26,400 円/坪 |
| 専有面積 | 663.20m² [200.62坪] |
| 築年数 | 2026/04/15 |
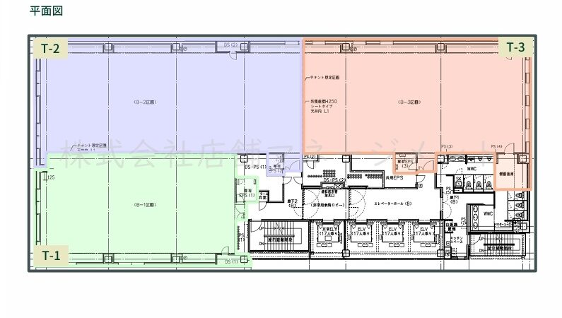
| 階数 | 6階 |
| 交通 |
札幌市営南北線さっぽろ駅 徒歩160m 徒歩2分 札幌市営南北線大通駅 徒歩320m 徒歩4分 |
| 種別 | 事務所 | ||
|---|---|---|---|
| 引渡し | |||
| 建物構造 | SRC | ||
| 部屋番号 | 6階 | ||
| 取引態様 | 仲介 | ||
| 駐車場 | 空有 | ||
| 駐車場備考 | 地下機械式水平循環駐車場28台(車いす対応、ハイルーフ対応) 地上荷捌き用駐車場2台 | ||
| 設備 | 現地要確認 | ||
| 備考 | その他諸経費あり | ||
| 耐震 | |||
| エレベーター | 有(2基以上) | トイレ | 男女別 |
| 会議室数 | 床仕様 | OAフロア | |
| 空調 | 個別空調 | 天井高 | 2750m |
| オフィス家具 | |||
| 敷金[保証金] | 12ヶ月 | ||
|---|---|---|---|
| 礼金 | |||
| 権利譲渡金 | |||
| その他費用 | |||
| 仲介手数料 | 529,368円 |
|---|
この物件の周辺地図
この物件の周辺情報
物件に関するお問い合わせは[物件番号:0026]をお伝え頂けますとスムーズにご案内出来ます。











事務所向け◆2026年4月完成予定!チ・カ・ホ直結の好アクセス!大型オフィスでお探しの方に最適!まずはお問合せお待ちしております!札幌駅・大通駅エリアでお探しの方はエリアに特化した不動産『オフィスデザイン札幌』へお任せください!